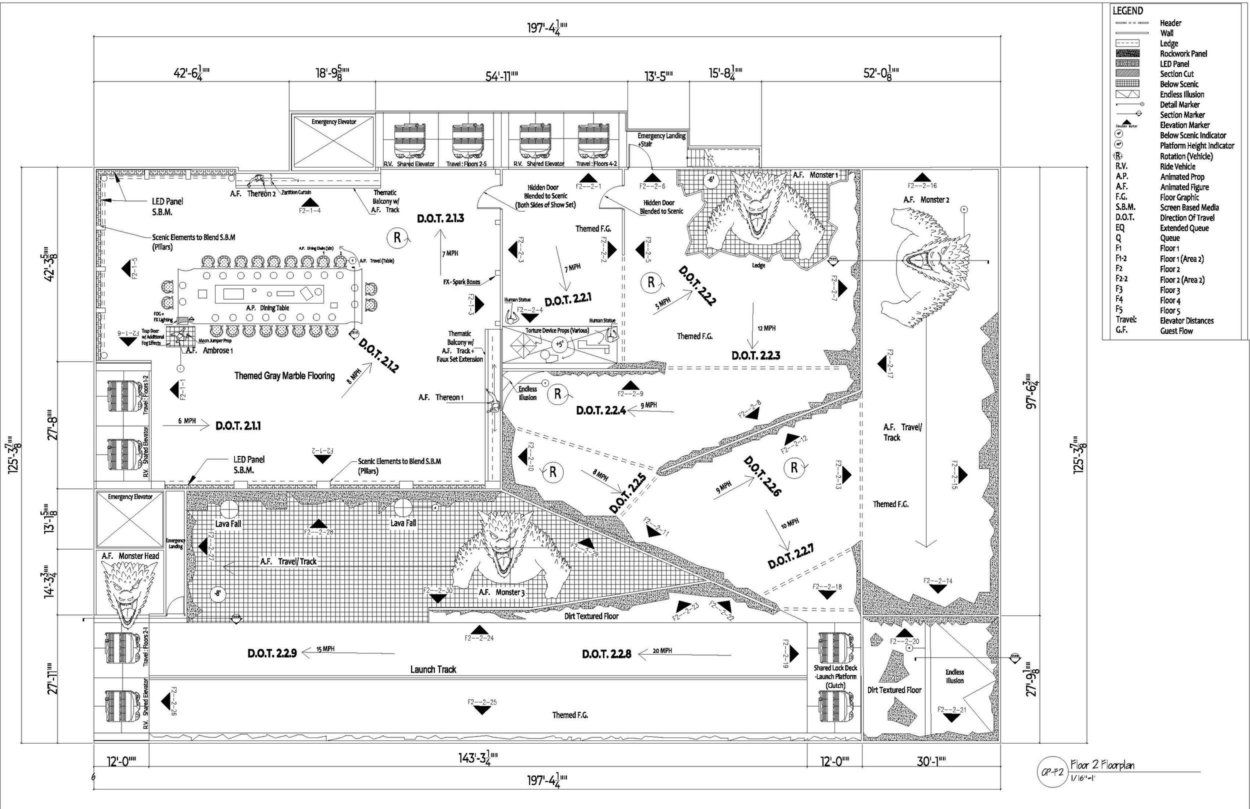
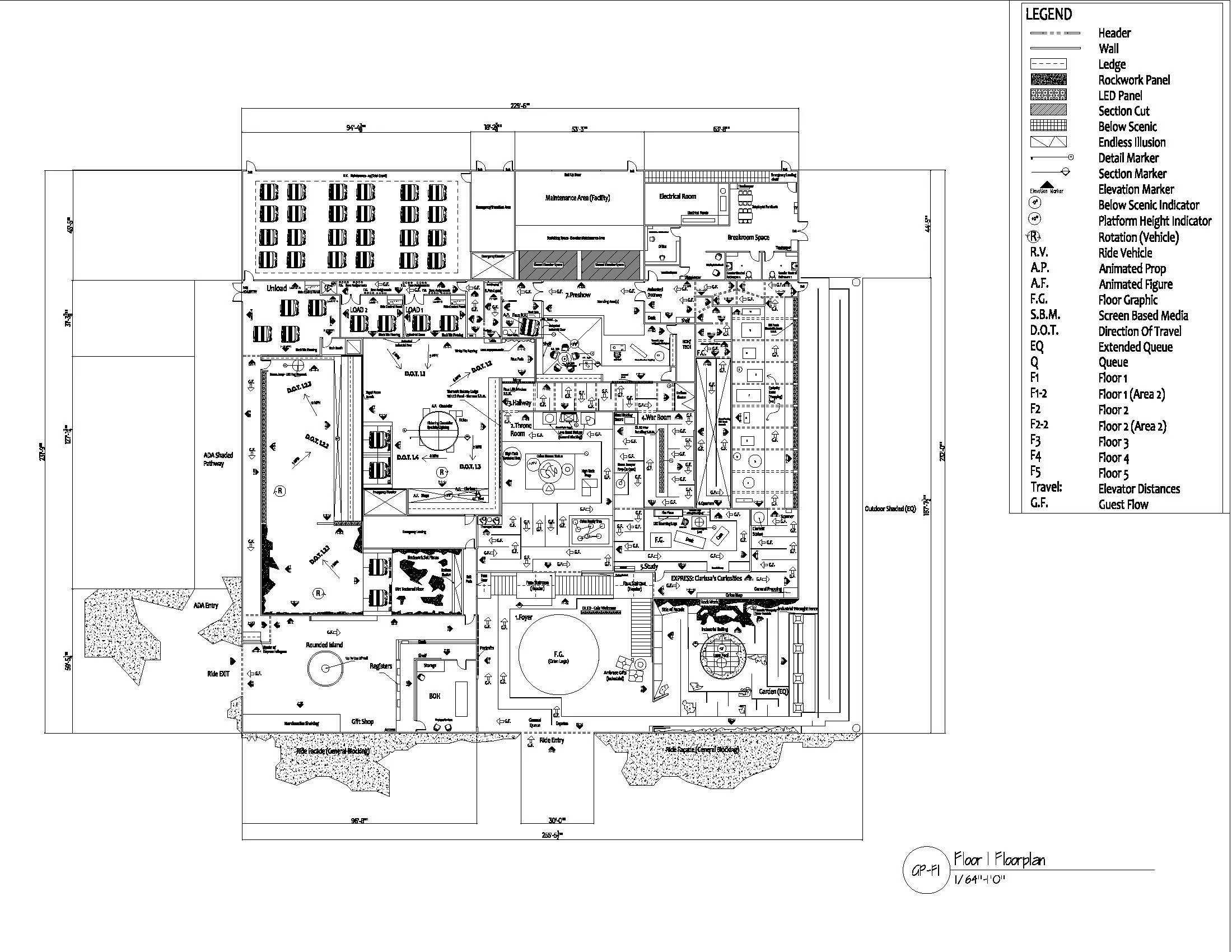
A sample of ground plans created in AutoCAD for a theme park attraction centered around a lava planet fortress with oppressive rule and monsters. This project was in collaboration with an Entertainment Design class covering different areas of scope within the themed land.

Previous
Previous

Spellbound: An Enchanted Adventure - Senior Capstone Project

Next
Next

Haunted Design Association - Ringling College - Design and Fabrication